ユニティ池袋 東池袋の賃貸事務所!池袋 東池袋 事務所 オフィス 豊島区|株式会社G.Aホーム

PC
現在 0 マイ条件の活用法 お気に入りの活用法

TOPページ > 豊島区の貸事務所・貸店舗情報一覧 > ユニティ池袋 東池袋の賃貸事務所!

ユニティ池袋 東池袋の賃貸事務所

お問合わせNO:2382
賃料 127.712万円 共益費 / 管理費 賃料に含む / - 敷金 / 礼金 - / -
用途 / 構造 事務所 / S造(鉄骨造) 更新料 / 再契約料金 なし 保証金 -
契約面積 162.41m2 / 49.12坪 所在階 / 階数 6階 / 地上8階/地下1階 築年月 1990年7月 
坪単価 2.6万円 契約の種類 -
交通
東京メトロ有楽町線 「東池袋駅」 徒歩2分
東京メトロ丸ノ内線 「池袋駅」 徒歩8分
東京メトロ有楽町線 「池袋駅」 徒歩8分
JR山手線 「池袋駅」 徒歩9分
都電荒川線 「都電雑司ヶ谷駅」 徒歩5分
所在地 東京都豊島区南池袋2-35-4   周辺MAP
※賃料・共益費/管理費・礼金には別途消費税がかかります。

写真枚数は 21枚 です。
 
【建物外観】 
  • 【建物外観】 
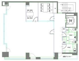
  • 【間取】 

【ユニティ池袋についてスタッフからのイチオシポイント!】

事務所利用に最適、ユニティ池袋!!南池袋にある、全面ガラス張りで高級感のある賃事務所!!
池袋駅、東池袋駅よりアクセス可能です。
2019年に全面的なリニューアル工事が完了し、窓面も広く開放的なオフィス空間です。
立地も良く、綺麗なビルで管理良好ですので来客にも安心です。
男女別トイレ、OAフロア、機械警備、駐車場など設備も整っています。
周辺は落ち着いたエリアですが、池袋駅周辺などに飲食店が豊富です。
諸条件等相談可能ですので、お気軽にお問合せ下さい。
ユニティ池袋は東京都豊島区南池袋2-35-4【東京メトロ有楽町線 東池袋駅徒歩2分】にある賃貸事務所です。
1990年7月築の事務所で地上8階/地下1階建ての6階部分です。

※物件のもっと詳しい内容や入居時期、諸条件のご相談など、ホームページには掲載が間に合わず載せきれていない情報もございます。
気になることが御座いましたらお気軽にメールにてお問い合わせください。

 物件詳細情報

契約期間 2年 償却 - 他初期費用  ・保険会社加入必須

・保証会社加入必須

※貸主指定業者
※保証会社(日商保)と保証委託契約を締結していただくことで、
 敷金無で入居することができます。 
※締結いただかない場合、敷金は別途ご相談となります。
駐車場 方位 エレベーター 11人 1基
現況 空家 入居可能日 即入居可 取引態様 媒介
24時間使用 24時間使用可 床仕様 OAフロア 天井高 3000
警備 機械警備 空調 個別空調 光ケーブル
造作 給排水 ガス

 設備詳細情報

設備
  • 男女別トイレ
  • エアコン
  • 光ファイバー
  • オートロック
  • 防犯カメラ
  • 2階以上
  • 24時間利用可
  • エレベーター
  • 給湯
  • OAフロア
  • 耐震構造(新耐震基準)
  • ワンフロア・ワンテナント
  • 業種
  • 事務所
  • コメント 事務所利用に最適、ユニティ池袋!!南池袋にある、全面ガラス張りで高級感のある賃事務所!!
    池袋駅、東池袋駅よりアクセス可能です。
    2019年に全面的なリニューアル工事が完了し、窓面も広く開放的なオフィス空間です。
    立地も良く、綺麗なビルで管理良好ですので来客にも安心です。
    男女別トイレ、OAフロア、機械警備、駐車場など設備も整っています。
    周辺は落ち着いたエリアですが、池袋駅周辺などに飲食店が豊富です。
    諸条件等相談可能ですので、お気軽にお問合せ下さい。
    備 考 ※図面と現況に相違がある場合は、現況を優先といたします。
    ※審査後、お申込みをお断りをする場合もございますのでご了承下さい。
    ※審査基準及び審査内容についてはお答え致しかねますので予めご了承下さい。

    ☆オフィス(事務所・営業所)、業種・業態等のご相談可能!!☆

    ◆店舗・性風俗関係・レンタルスペース・短期利用不可◆
    ※業種・業態、その他の諸条件等のご相談、お気軽にお問合せ下さい※

    ☆ユニティ池袋☆
    ※1990年7月築の新耐震基準物件
    ※6階:162.41u(49.12坪)
    ◇駅近の好立地!
    ◇JR各線・東京メトロ各線・西武池袋線・東武東上線・都電荒川線等、各線・駅よりアクセス可能!
    ◇池袋駅・東池袋駅・雑司ヶ谷駅等!
    ◇南池袋公園や豊島区役所も近く、明治通り沿いに西武百貨店もあり!
    ◇人気スポットのサンシャイン60やアニメイトも近く!
    ◇郵便局・金融機関・コンビニ・スーパー・飲食店も徒歩圏内!
    ◇日当たりも良好!
    ◇道路に面した窓は視認性も良好です!
    ◇オートロックも完備しているので、セキュリティ面も安心!
    ◇24時間・土・日・祝使用可!
    ◇毎日の通勤にも便利、オフィスワーカーにとって利便性が高く、ビジネスの拠点に最適!

    <設備>
    ◇トイレ(専有部男女別):洋式
    ◇個別空調
    ◇エレベーター(11人1基)EV不停止機能付
    ◇メールボックス(ポスト)
    ◇オートロック
    ◇火災受信機(火災報知機)
    ◇防犯カメラ

    <その他>
    ・2019年、セットアップ・リニューアル工事完了
    ・室内セットアップ(執務スペース・会議室1室)
    ・リニューアル(トイレ・給湯室・照明)
    ・エントランス開閉時間 7:00〜21:30(平日・土・日・祝)
    ※時間外は、カードキーにて入館可能

    (特徴・設備は調査時のものです。現状を優先致しますのでご了承下さい。)
    情報更新日:2026年03月06日 次回更新予定日:2026年03月20日
    ※各種情報と現状に差異がある場合は、現状優先となります。

     こちらの物件の空室状況

    区画 賃料 坪単価 共益 / 管理費 契約面積 敷金 / 保証金 礼金 償却 お気に入り 物件詳細

     地図情報


     こちらの物件へのお問合せはこちらから

    ホームページを見てと伝えてください
    株式会社G.Aホーム
    〒171-0022
    東京都豊島区南池袋3-15-11 ナイスフォーラム南池袋6F
    TEL : 03-5956-4004
    お問合わせNO:2382

    空室情報の確認や詳細を知りたい方
    お問合せはお気軽にお問合せください!


    この物件に似た物件をチェック!

    • 賃貸事務所 77.148万円

      池袋駅 徒歩8分

      64.18坪 / 212.16u

      池袋駅徒歩8分。要町駅5分。

    • 賃貸事務所 83.74万円

      池袋駅 徒歩14分

      41.87坪 / 138.42u

      サンポウ池袋ビル 池袋駅西口 貸事務所 店舗ご相談可


    閲覧した物件の履歴

    閲覧した物件の一覧を見る


    気になったら今すぐ!カンタンお問合せ



    用途必須
    【備考欄】
    希望条件・来店希望日・その他質問がございましたらご記入ください。
    お客様情報
    会社名・お名前必須
    連絡先必須


    ※ご記入いただいたメールアドレス宛てに、お問合せ内容の確認メールをお送りいたします。
    ※Yahoo!メールなどのフリーメールをご利用の場合、迷惑メールフォルダに入る場合があります。
     迷惑メールのフォルダ・設定等をご確認下さい。
    メールアドレス
    電話番号
    FAX(任意)
    入居時期



    プライバシーポリシーを必ずご確認ください。内容に同意の上、確認画面へお進みください。

     


    ▲ページのTOPへ戻る



    株式会社G.Aホーム

    TEL.03-5956-4004(不動産部)/03-5396-3841(建物管理部)
    MAIL.fudousan@ga-home.jp
    〒171-0022
    東京都豊島区南池袋3丁目15−11
    ナイスフォーラム南池袋6階
    9:00〜17:30
    (定休日:土曜日・日曜日・祝日)

    テナントオーナー様へ 物件リクエスト